| |
|
|
Antike Tempel in der Türkei
Glossar |
|
|
| |
|
|
|
Griechische Tempel |
|
|
|
|
|
|
 |
|
|
Der Athena-Tempel von Assos
(Rekonstruktion) |
|
|
|
|
|
Der griechische Tempel ist
ursprünglich das ein Kultbild bergende Gebäude eines griechischen
Heiligtums. Er ist der bedeutsamste und am weitesten verbreitete
Gebäudetypus der griechischen Baukunst.
Innerhalb weniger Jahrhunderte entwickelten die Griechen den Tempel
von den kleinen Lehmziegelbauten des 9. und 8. Jahrhunderts v. Chr.
zu monumentalen Bauten mit doppelten Säulenhallen des 6.
Jahrhunderts v. Chr., die ohne Dach leicht über 20 Meter Höhe
erreichten.
Für die Gestaltung griffen sie hierbei auf die
landschaftsspezifischen Bauglieder der verschiedenen Säulenordnungen
zurück, bei denen zunächst zwischen dorischer und ionischer Ordnung
zu unterscheiden ist, zu denen ab dem späten 3. Jahrhundert v. Chr.
die korinthische Ordnung trat.
Es wurde eine Vielzahl unterschiedlicher Grundrissmöglichkeiten
entwickelt, die mit den verschiedenen Säulenordnungen der
aufgehenden Architektur kombiniert wurden.
Ab dem 3. Jahrhundert v. Chr. ließ der Bau großer Tempel nach, um
nach einer kurzen letzten Blüte im 2. Jahrhundert v. Chr. im Verlauf
des 1. Jahrhunderts v. Chr. fast vollständig zum Erliegen zu kommen.
|
|
|
|
|
|
 |
|
|
Dorisches Kapitell |
|
|
|
|
|
 |
|
|
Ionisches Kapitell |
|
|
|
|
|
 |
|
|
Korinthisches Kapitell |
|
| |
|
|
Grundriss |
|
|
|
|
|
 |
 |
|
|
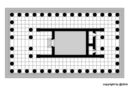
Naos |
Cella |
|
|
|
|
|
Der zentrale Kultbau des Tempels, der Naos, kann in mehrere
Gebäudebereiche unterteilt sein. Meist war im Hauptraum, der Cella,
die Götterstatue aufgestellt. |
|
|
|
|
|
|
 |
|
|
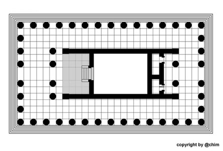
Adyton |
|
|
|
|
|
In archaischen Tempeln
kann hierfür noch ein eigener Raum, das Adyton, abgetrennt sein. |
|
| |
|
|
 |
 |
|
|
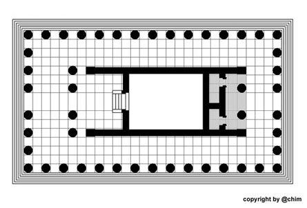
Pronaos |
Opisthodom |
|
|
|
|
|
|
Auf der Vorderseite der Cella befindet sich eine Vorhalle, der
Pronaos, die aus den hervorspringenden Seitenwänden der Cella, den
Anten, und zwei dazwischen stehenden Säulen gebildet wird.
Ein dem Pronaos entsprechender Raum auf der Rückseite des Tempels
wird Opisthodom genannt. Dieser nicht mit der Cella durch eine Tür
verbundene Raum ist rein ästhetisch zu begründen: Um der
Allseitigkeit des Peripteros zu genügen, wurde die Gestaltung der
Front an der Rückseite wiederholt. |
|
| |
|
|
 |
|
|
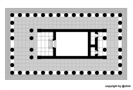
Pteron |
|
| |
|
|
Ringsum kann der Naos von einem oder mehreren Säulenkränzen, der
Ringhalle oder Peristasis, umgeben sein. Dadurch wird ein
umlaufender Umgang, das Pteron gebildet, der den Heiligtumsbesuchern
Raum bot und für kultische Prozessionen genutzt wurde. |
|
| |
|
 |
|
|
Ein Beispiel für den Umgang (Pteron) |
|
|
Die in der Türkei erhaltenen
griechischen Tempel sind fast ausschließlich als Peripteros
(Ringhallentempel) ausgeführt. Bei diesem Typus des antiken
Tempels ist die Cella von einem durch einen Säulenkranz (Peristasis)
begrenzten Umgang (Pteron) umgeben. |
|
| |
|
 |
|
|
Einer der größten
Ringhallentempel war der Artemistempel von Ephesos, einem
der sieben Weltwunder der Antike. Lt. Plinius, einem römischen
Gelehrten, hatte allein der Unterbau des Artemistempels einen
Unterbau von 125,67 × 65,05 Meter und eine Höhe von 2,7 Meter.
127 Säulen mit einer Höhe von rund 18 Metern und ein Steindach
machten ihn zu diesem außergewöhnlichen Bauwerk. |
|
| |
|
|
Der Grundriss griechischer
Tempel konnte Ausmaße bis zu 115 × 55 Meter erreichen, füllte also
die Fläche eines durchschnittlichen Fußballfeldes und besaß dabei
Säulenhöhen von annähernd 20 Meter.
Solche Baumassen harmonisch zu gliedern, bedurfte es ausgeklügelter
Entwurfsmittel, die bereits an kleineren Tempeln entwickelt wurden
und sich bewährt hatten. Wichtiges Maß war hierfür der Fuß, der je
nach landschaftlicher Ausrichtung unterschiedliche Größen besaß und
zwischen knapp 29 und 34 Zentimeter schwankte. Aus diesem Grundmaß
wurden die Einheiten abgeleitet, aus denen sich der zu entwerfende
Tempel entwickelte.
Wichtige Faktoren waren hierbei der untere Durchmesser der Säulen
oder die Breite der Standplatten für die Säulen, die Plinthen.
Auch der Achsabstand der Säulen, das Joch, konnte als Basis des
Entwurfes dienen.
Diese Maße wurden in Beziehungen zu anderen Entwurfselementen
gesetzt, zur Säulenhöhe, zum Säulenabstand,
und wirkten sich schließlich durch die Anzahl der Säulen auf die
Außenmaße von Stylobat und Ringhalle einerseits, des eigentlichen
Naos andererseits aus. |
|
| |
|
|
 |
|
|
Der Tempel der Tyche auf der Handelsagora in
Side |
|
| |
|
|
Ein weiterter Typus
griechischer Tempels sind die Rundtempel (Tholos). Die antike Tholos
weist meist eine kreisrunde Cella und einen die Cella konzentrisch
umgebenden Säulenumgang auf. Man spricht dann von peripteraler
Tholos. Sie kann im Innern einen weiteren Säulenring oder eine
Halbsäulengliederung der Innenwand umfassen. (siehe Tempel der Tyche auf der Handelsagora in
Side und Perge) |
|
| |
|
|
 |
|
| |
|
| |
|
|
 |
|
| |
|
|
Der Aufbau griechischer
Tempel gliedert sich immer in drei Zonen: den Stufenbau, die Säulen,
das Gebälk.
Das unterirdische Fundament eines griechischen Tempels wird
Stereobat genannt, die oberste Schicht die Euthynterie. Ihre
Oberfläche der Euthynterie ist sorgfältig geglättet und
ausgeglichen. Hierauf erhebt sich ein meist dreigliedriger
Stufenbau, Krepis (oder Krepidoma) genannt, dessen oberste Stufe die
Standfläche für die Säulen bildet und daher Stylobat genannt wird.
Stereobat, Euthynterie und Krepis bilden zusammen den Unterbau des
Tempels. |
|
| |
|
| |
|
|
Römische Tempel |
|
| |
|
 |
|
|
Die Überreste des römischen Tempels in Seleukia ad Calycadnum
(Silifke) |
|
| |
|
|
Im römischen Sakralbau
vermischen sich etruskische und griechische Einflüsse. Die
etruskischen Tempel erheben sich auf einem hohen Sockel als Unterbau
und setzen sich somit deutlich von der Umgebung ab.
Sie sind richtungsbezogen, haben also einen rechteckigen Grundriss.
Eine Freitreppe an der Schmalseite führt in die Vorhalle, eine
offene Säulenhalle, die vor der oft dreiteiligen Cella, dem
Innenraum liegt. Das ganze wird von einem flachen Satteldach mit
Tonziegeln abgedeckt.
Die römischen Tempel übernehmen die etruskischen Vorbilder,
griechische Einflüsse werden aber im Laufe der Zeit – vor allem nach
der römischen Eroberung Griechenlands im 2. Jahrhundert v. Chr. –
immer stärker: der Grundriss wird in Längsrichtung gestreckt, die
Cella wird im Verhältnis zur Vorhalle größer, ihre Dreiteilung wird
zugunsten eines Großraums aufgegeben.
Ein gut erhaltenes Beispiel aus augusteischer Zeit ist die Maison
Carrée in Nîmes. |
|
| |
|
| |
|
|
Tempel für den
römischen Kaiserkult |
|
| |
|
|
27 v. Chr. wurde Caesars Nachfolger Augustus erster römischer Kaiser und
nannte sich selbst zu Lebzeiten divi filius, also "Sohn des Vergöttlichten".
Unmittelbar nach seinem Tod wurde er unter die Götter erhoben. Im mit dem Herrscherkult vertrauten griechischen Osten waren ihm aber bereits zu Lebzeiten
entsprechende Ehrungen zuteil geworden. Eine göttliche Verehrung des
lebenden Kaisers durch römische Bürger widersprach hingegen im Kern
der Prinzipatsideologie, nach der die res publica vorgeblich noch
immer bestand.
Im Westen gestatteten bzw. veranlassten Augustus und sein Nachfolger
Tiberius ihre Verehrung zu Lebzeiten daher wohl nur in
eingeschränktem Maße; erst später setzte sich der Kaiserkult dann
auch hier flächendeckend durch.
Der Herrscher war seit Augustus zu Lebzeiten auch oberster
Staatspriester (pontifex maximus) und konnte neue religiöse Gesetze
schaffen bzw. bestehendes Recht endgültig auslegen.
In den Provinzen galt der Kaiserkult als
Ausdruck der Loyalität gegenüber Rom. Wer ihn verweigerte, schloss
sich damit aus der Gesellschaft aus und galt leicht als „Hasser des
Menschengeschlechts“. In Folge dessen errichteten viele Städte
eigens für den jeweiligen Kaiser einen Tempel, der -entsprechend dem
Reichtum ihrer Bürger - durchaus auch mehreren aufeinanderfolgenden
Kaisern gewidmet sein konnten. |
|
| |
|
 |
|
|
Die Maison Carrée in Nîmes. |
|
| |
|
|
Die Maison Carrée ist
ein hervorragendes Beispiel
eines klassischen augusteischen Podiumstempels. Er ist einer
der am besten erhaltenen Tempel auf dem Gebiet des Römischen
Reiches.
Er wurde ganz zu Beginn des 1. Jahrhunderts n. Chr., möglicherweise
auf Veranlassung des Marcus Vipsanius Agrippa errichtet und war den
Söhnen des Agrippa, Gaius und Lucius, den jung verstorbenen
Adoptivsöhnen des Augustus, gewidmet.
Die rechteckige Grundfläche ist beinahe zweimal so lang wie breit
(26,42 m mal 13,54 m).
Die Vorderseite des pseudoperipteralen Tempels wird von einer tiefen
prostylen Vorhalle dominiert, die ein Drittel der Gebäudelänge
einnimmt. Ihre zehn Säulen besitzen wie die 20 Halbsäulen der
äußeren Cellawände korinthische Kapitelle.
Über dem auf den Kapitellen liegenden Drei-Faszien-Architrav folgt
ein Fries mit feinen Reliefs, die Rosetten und Akanthusblätter
zeigen. Eine große Tür (6,87 m hoch und 3,27 m breit) führt in die
kleine und fensterlosen Cella, den Ort für die Aufstellung der
Kultbilder. |
|
| |
|
|
  |
|
|
Beispiel: Maison Carrée in
Nimes |
Beispiel: Tempel für den
Kaiserkult in Adada |
|
| |
|
|
 |
|
|
Der Hadrianstempel in Ephesos |
|
| |
|
|
| |
|
|
| |
|
|
| Fotos: @chim,
Monika P. |
|
|
| Text:
Wikipedia u.a. |
|
|
|
 |